Montegaldella 21/10/2025

Prezzo
500.000 €
Contratto:
Vendita
Mq:
250
Stato:
Ottimo
Bagni
3
Cucina:
No
Piano:
2
Classe energetica:
A4 (solo per APE 2015)
IPE:
17.09

Descrizione

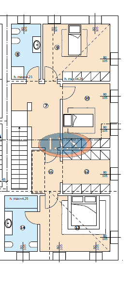
MONTEGALDELLA (VI) Proponiamo PORZIONE DI BIFAMILIARE di 250 mq al GREZZO AVANZATO disposta su due livelli con un ampio GIARDINO su di un lotto di pertinenza di 1500 mq. Questa soluzione abitativa è immersa nel verde della campagna, con una splendida vista sulle montagne ma comoda ai principali servizi. Composizione ambienti: - Piano Terra: ingresso, ampia zona giorno open-space (con possibilità di dividere la cucina dal soggiorno), una camera/studio, bagno finestrato, locale tecnico/lavanderia e ripostiglio; - Piano Primo: 3 camere, 1 studio/cabina armadio, 2 bagni finestrati. Sottotetto. Caratteristiche principali: - Ampi spazi abitativi sia interni che esterni; - Tetto ventilato con travi a vista; - Serramenti in legno con triplo vetro; - Balconi in legno; - Zanzariere; - Riscaldamento a pavimento con pompa di calore già installata; - VMC (ventilazione meccanica controllata). Nel giardino di circa 1350 mq è stata costruita una pompeiana (per 2 posti auto) dove sono stati installati i pannelli per l' impianto fotovoltaico per 7,29 KW con batterie di accumulo per 11 KW. Richiesta euro 500.000 (da considerarsi allo stato attuale di grezzo avanzato). Classe Energetica A4 - IPE EP gl, nren 17,09 kWh/mq anno Per maggiori informazioni Agenzia Immobiliare I.V.S. Montegalda, tel. 0444/737082- 340-7620513 (MM536) --- annuncio pubblicato con GESTIONALEIMMOBILIARE.it

  • Collina: No
  • Impianto illuminazione: No
  • Impianto elettrico: Non definito
  • Latitudine: 45.42672
  • Pannelli fotovoltaici:
  • Aria condizionata: No
  • Camino: No
  • Numero vetrine: 0
  • Impianto anti incendio: No
  • Categoria immobile: Bifamiliare
  • Impianto geotermico: No
  • Terrazzi: 0
  • Aree esterne: No
  • Contratto: Vendita
  • Lavanderia: No
  • Cantina: No
  • Età immobile: 2023
  • Taverna: No
  • Terme: No
  • Camere: 5
  • Riscaldamento centralizzato: No
  • Banchine di carico: 0
  • Lago: No
  • Piano terra:
  • Numero portoni: 0
  • Asta: No
  • Nuovo:
  • Predisposizione aria condizionata: No
  • Soffitta: No
  • Stato manutenzione: Ottimo
  • Arredo: No
  • Carro ponte: No
  • Grezzo:
  • Allacciamento fognatura: No
  • Giardino condominiale: No
  • Numero locali: 6
  • UM IPE: kWh/m2anno
  • Piscina: No
  • Montagna: No
  • Poggioli: 0
  • Longitudine: 11.65264
  • Panorama: Vista monti
  • Connettività: Nessuna
  • Ribalte: No
  • Piano semi interrato: No
  • Primo piano:
  • Piano numero: 2
  • Soggiorno: No
  • Mare: No
  • Garage doppio: No
  • Posizione: Sconosciuto
  • Rif. agenzia: MM536
  • Mansarda: No
  • Ultimo piano:
  • Piano intermedio:
  • Riscaldamento autonomo:
  • Ripostigli: 1
  • Pannelli solari: No
  • Predisposizione allarme: No
  • Totale piani: 2
  • Saracinesche: 0
  • Piano interrato: No
  • Riscaldamento a pavimento:
  • Canna fumaria: No
  • Cucina: No
  • Vendita:
  • Numero accessi carrai: 0
  • Ingresso indipendente:
  • Ascensore: No
  • Giardino:
  • Classe energetica: A4 (solo per APE 2015)
  • Allarme: No
  • Bagni: 3
  • Soggiorno con angolo cottura:
  • Garage: No
  • Posto auto: 2
  • Affitto: No
  • Cabina elettrica: No
  • APE: ape2015 (classe: A4, prestazione estate: medio, prestazione inverno: buono, epglNRen: 17.09, unità kWh: kWh/m2anno)
  • Urbanizzato: No
  • Piano rialzato: No
  • Montacarichi: 0
  • Campagna: No
  • Immobile di prestigio:
  • IPE: 17.09